
صحيفة عسير – حنيف آل ثعيل :
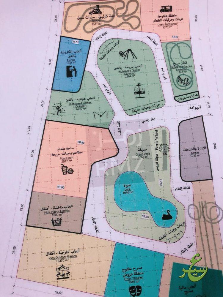
أنهت بلدية بيشة إجراءات ترسية ١٥ موقعاً استثمارياً جديد تتضمن إنشاء وتشغيل مدينة ترفيهية تتجاوز مساحتها ٣٠ ألف متر مربع بالاضافة إلى إنشاء وتشغيل حديقة ومركز رياضي للنساء بمساحة تقدر بأكثر من ١٦٠٠٠ ألف متر مربع ، كما شملت أعمال الترسية إنشاء وتشغيل مستشفى خاص والعديد من الأكشاك والملاعب ومواقع تتعلق بالدعاية والاعلان لمواقع متفرقة أسهمت في نمو الإيرادات البلدية .
وأوضح رئيس بلدية بيشة المهندس مصلح العلياني أن إيرادات المواقع الاستثمارية الجديدة بالإضافة إلى ماتم اعادة تقديره من المواقع الاستثمارية والتي تتجاوز ال ٦٠ موقع تقدر بنحو ثلاثة ملايين ريال سنويا .
كما أكد رئيس البلدية بأنه تم تصحيح عدد من العقود خلال العامين الماضية أكثر من ١٨٠عقد إستثماري ، كما صدرت الموافقة على سحب العديد من المواقع الإستثمارية المخالفة ، وأزالت البلدية ١٣ موقع إستثماري مخالف للنشاط وقد راعت البلدية في طرح المواقع الاستثمارية احتياج المحافظة من مشاريع استثمارية تتزامن مع رؤية المملكة ٢٠٣٠ ، كما اشترطت على المستثمرين الجدد إعداد الدراسات الإنشائية للمشاريع الإستثمارية التي سيتم تنفيذها وربطها بعقودهم الإستثمارية مع تحديد المدة الزمنية لإنشائها .
كما شكر رئيس البلدية مدير قسم الاستثمار الاستاذ / محمد ربيعان آل مشوط لجهوده في طرح المواقع وترسيتها ومايبذله من جهود حالياً في مشروع حصر وتوثيق وأرشفة العقود الاستثمارية والذي سيسهم هذا المشروع في تسهيل الإجراءات الإلكترونية لقسم الاستثمار .


>
عسير صحيفة عسير الإلكترونية